Description
Dans l’un des secteurs les plus prisés du Grand-Bornand, cette ferme datant de 1797 s’inscrit dans un environnement au calme, bénéficiant d’un ensoleillement optimal et d’une vue spectaculaire sur la chaîne des Aravis et le village.
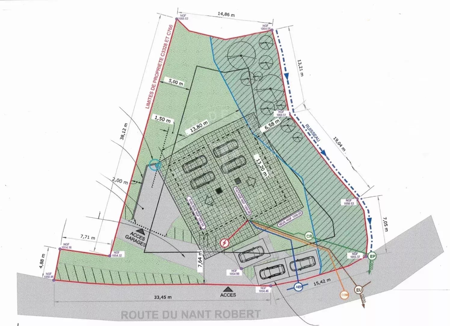
Implantée sur un terrain de 1133 m², la propriété développe actuellement 357 m² et fait l’objet d’un permis de construire purgé de tout recours pour une réhabilitation complète, respectueuse de son identité architecturale.
Le permis prévoit :
-Le démontage total de l’existant
-Le réemploi des bois de structure et des pierres de pays
-Une reconstruction déplacée plus haut sur la parcelle, renforçant la vue et la valeur patrimoniale
-Un volume supérieur à 600 m³
-Une nouvelle emprise au sol de 174 m²
Deux configurations sont possibles : Soit 2 logements indépendants :
-151 m² habitables + 39 m² de garage
-173 m² habitables + 47 m² de garage
Ou une ferme familiale d’exception offrant de vastes volumes, idéale en résidence principale ou secondaire haut de gamme.
7 stationnements prévus (4 couverts, 3 extérieurs).
Une situation privilégiée avec navette à 120 m, centre du village à 2 km, à 30 minutes du lac (Menthon-Saint-Bernard), à 40 minutes d’Annecy et 60 minutes de l’Aéroport international de Genève.
Pour organiser une visite ou pour plus d'informations, contactez Valérie SERGENT – Agent commercial EI - 06 27 57 52 46 ou par email à vs@tourdeslacs.com.