En vente Appartement 4 pièces 550 m2
| Ville | Nice |
| Code postal | 06100 |
| Type de bien | Appartement |
| Surface | 550 m2 |
| Nombre de pièces | 4 pièces |
| Prix | 1 290 000,00 € |
| Informations sur l'annonceur | |
|---|---|
| Annonce de professionnel |
|
| Agence | AMANDA PROPERTIES Voir toutes les annonces |
| Adresse | 93 Boulevard de la Croisette |
| 06400 Cannes | |
| Téléphone Fixe | 0493433333 |
Description
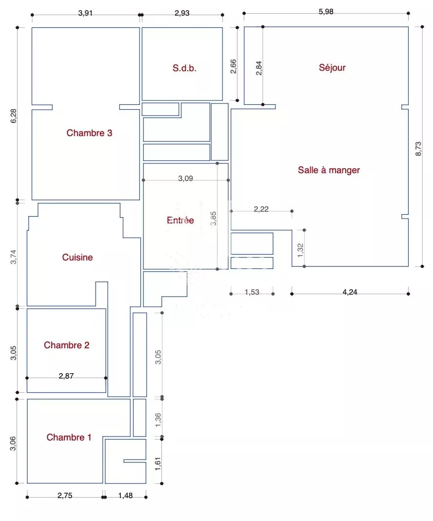
NICE CIMIEZ : Amanda Properties vous invite en plein coeur de Cimiez, à découvrir dans belle résidence de standing avec gardien, Ce grand et lumineux 4 pièces en dernier étage de 144 m² en triple exposition, à moderniser, ouvert sur une fabuleuse terrasse de 380 m² de plain pied avec jardinières arborées, barbecue, offrant des vues panoramiques sur les collines, la ville, la mer et le Cap d'Antibes. Il se compose d'une entrée, grand séjour, cuisine indépendante, chambre de maître avec dressing et salle de bains, deux autres chambres dont une avec douche, toilettes invités et de nombreux rangements. Ce bien d'exception au très fort potentiel est vendu avec un grand garage et cave ***A Moderniser & Rafraichir
Les photos du bien
Les diagnostics
Les informations complémentaires
(06 NICE CIMIEZ - Exceptionnel Appartement de 150 m2 Dernier ét