En vente Maison 5 pièces 139 m2
| Ville | VAL D ARRY |
| Code postal | 14310 |
| Type de bien | Maison |
| Surface | 139 m2 |
| Nombre de pièces | 5 pièces |
| Prix | 263 000,00 € |
| Informations sur l'annonceur | |
|---|---|
| Annonce de professionnel |
|
| Agence | RUE DU PARTICULIER Bayeux Voir toutes les annonces |
| Adresse | |
| 14400 BAYEUX | |
| Téléphone Fixe | 0231929576 |
Description
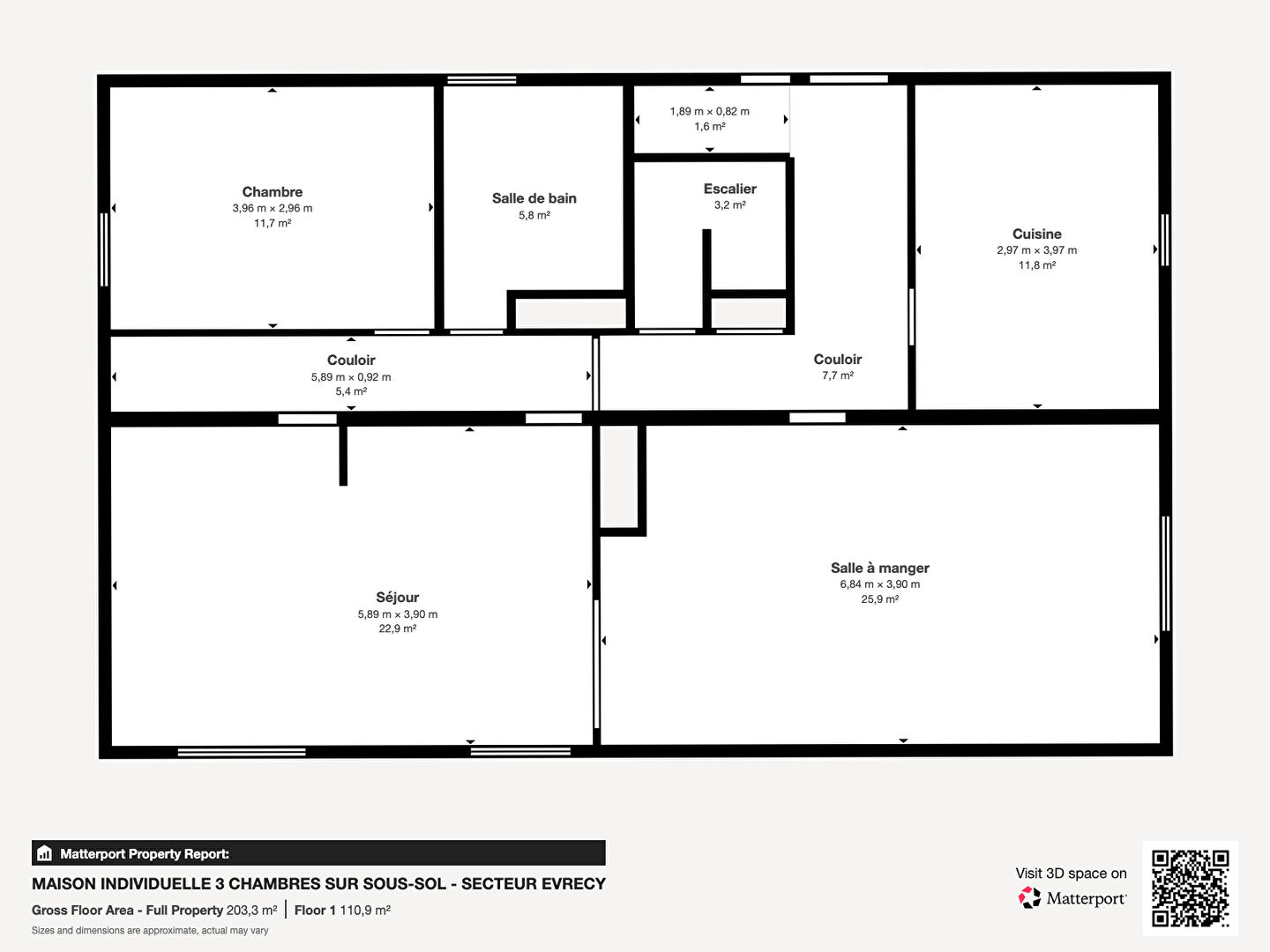
MAISON INDIVIDUELLE 3 CHAMBRES SUR SOUS-SOL - SECTEUR EVRECY Rue du Particulier vous propose à la vente cette charmante maison individuelle de plain-pied, offrant une surface habitable de 139 m², implantée sur un terrain de 1 152 m², dans un environnement très calme, à égale distance (8 kms) du centre d'Évrecy et du centre de Villers-Bocage. La maison s'ouvre sur une véranda d'entrée menant à un couloir avec rangements, lequel dessert une cuisine indépendante, un spacieux double séjour d'environ 50 m² agrémenté d'une cheminée, ainsi qu'une salle de bain et un WC indépendant. Depuis le salon, vous accédez directement à une agréable terrasse exposée sud-ouest, idéale pour profiter des beaux jours. A l'étage, l'espace nuit comprend deux chambres, un WC indépendant, ainsi qu'un grenier aménageable, offrant un potentiel d'aménagement supplémentaire. La maison bénéficie également d'un sous-sol complet, apportant de nombreuses possibilités de stockage ou d'aménagement. Chauffage au fuel Huisseries en double vitrage bois équipées de volets roulants en PVC. Assainissement individuel. Taxe foncière : 813 euros DPE effectué en 2025 : Montant estimé des dépenses annuelles d'énergie pour un usage standard : entre 3970 euros et 5420 euros. Prix moyens des énergies indexés au 01/01/2021 (abonnements compris). DPE : E / GES : E. Consommation énergie primaire : 225 kWh/m²/an. Prix moyens des énergies indexés sur les années 2021, 2022 et 2023 (abonnements compris). Les informations sur les risques auxquels ce bien est exposé sont disponibles sur le site Géorisques : https://www.georisques.gouv.fr/ Les honoraires sont à la charge du vendeur.