En vente Maison 3 pièces 180 m2

Ville Issoire
Code postal 63500
Type de bien Maison
Surface 180 m2
Nombre de pièces 3 pièces
Prix 179 000,00 €
Informations sur l'annonceur
Annonce de professionnel
Agence Allowa
Voir toutes les annonces
Adresse 52 B, rue de la Bienfaisance
75008 Paris

Description

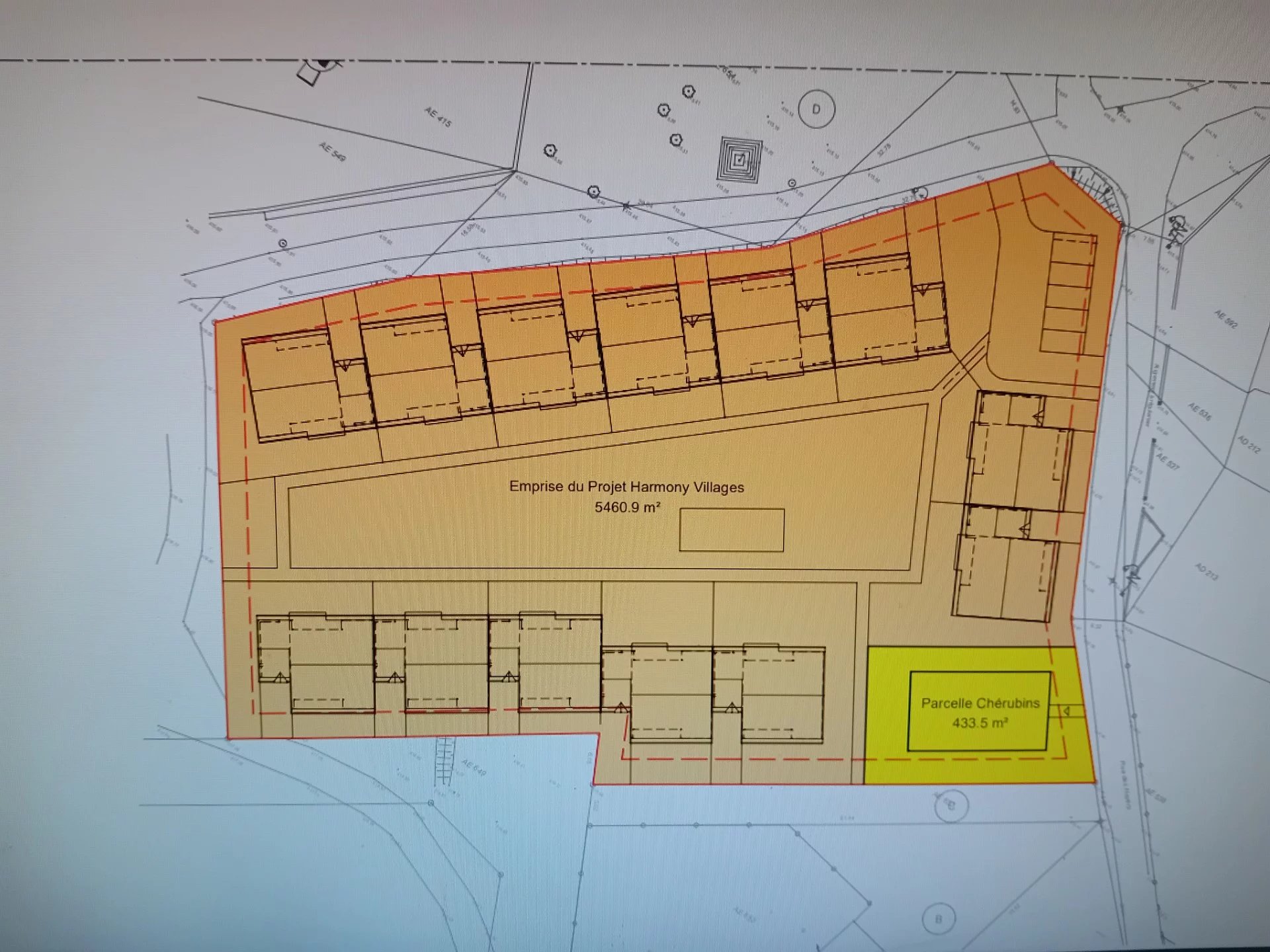
A 30 minutes du centre de Clermont Ferrand, dix minutes d'accès à l'autoroute A75, située sur la commune de Neschers, la création de ce groupe de logements pour seniors est une réelle alternative entre un habitat non adapté et une maison de retraite. Chaque logement d'une surface habitable de 70M2 disposera de deux chambres, une cuisine ouverte sur l'espace salle à manger, salon, une salle d'eau avec douche à l'italienne et WC. Il bénéficiera également d'une terrasse, d'un parking couvert de 20M2, et d'un de terrain d'agrément à usage de jardin, de pelouse ou d'espace fleuri. Une aire de promenade privative sera dédiée à l'ensemble des résidants de ce "village " de 13 logements séniors. Les services médicaux et d'aide à domicile sont dispensés par les structures locales. Enfin, la présence de l'école publique, le projet de création d'une micro crèche dédiée à la petite enfance de 0 à 3 ans en mitoyenneté du village Seniors font de cet ensemble un véritable projet intergénérationnel où il fera bon résider. Que vous soyez investisseurs pour du locatif ou comme futur résidant, alors n'hésitez pas contactez moi pour plus d'informations.

Les photos du bien

Les diagnostics

Les informations complémentaires

MAISON SENIORS
Prix de vente honoraires TTC inclus : 175 000 €

Contacter