En vente Immeuble 165 m2
| Ville | Agde |
| Code postal | 34300 |
| Type de bien | Immeuble |
| Surface | 165 m2 |
| Nombre de pièces | |
| Prix | 166 300,00 € |
| Informations sur l'annonceur | |
|---|---|
| Annonce de professionnel |
|
| Agence | SAFTI Voir toutes les annonces |
| Adresse | 118 route d'Espagne |
| 31100 Toulouse | |
| Téléphone Fixe | 0810454540 |
Description
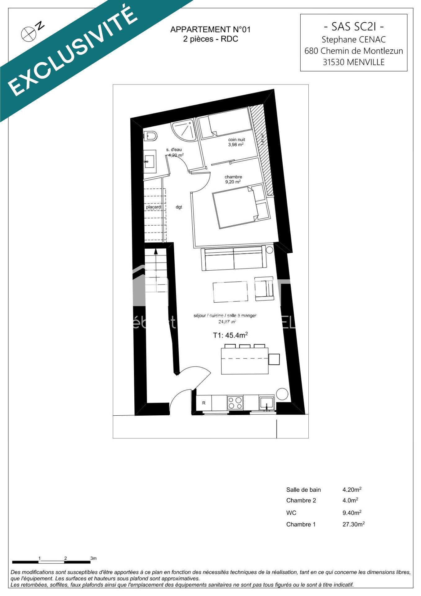
Immeuble de rapport Centre historique d'AgdeOpportunité rare pour investisseurs ! Situé au coeur du centre historique d'Agde, dans un quartier recherché et en pleine modernisation (logements neufs, réaménagement urbain), cet immeuble en cours de rénovation vous offre un potentiel locatif exceptionnel. Composition : 2 appartements T2 de 45 et 49 m²1 appartement T3 avec mezzanine de 63 m²Rentabilité estimée : 7 à 8 %Un projet idéal pour investisseurs souhaitant sécuriser et valoriser leur patrimoine. Deux options d'acquisition : Dans son état actuel à un prix attractif, avec possibilité de réaliser vous-même les travaux. Clé en main pour 260 000 ¤ travaux finis, prêt à la location immédiate. Avantages majeurs : Éligible au dispositif fiscal DenormandieSecteur dynamique et recherchéForte demande locative assurant un rendement solide et pérenneVidéos disponibles sur demande. Que vous soyez investisseur aguerri ou en recherche d'un premier projet rentable, cet immeuble est une opportunité à ne pas manquer. Les informations sur les risques auxquels ce bien est exposé sont disponibles sur le site Géorisques : www.georisques.gouv.frPrix de vente : 166 300 ¤Honoraires charge vendeurContactez votre conseiller SAFTI : Sébastien BERENGUEL, Tél. : 06 61 86 50 77, E-mail : sebastien.berenguel@safti.fr - EI - Agent commercial immatriculé au RSAC de Montpellier sous le numéro 811408806.Informations LOI ALUR : Honoraires charge vendeur. (gedeon_26118_30830450)
Les photos du bien
Les diagnostics
Les informations complémentaires
Immeuble de rentabilité coeur d'Agde avec 3 logements libres à rénover.