En vente Appartement 5 pièces 92 m2
| Ville | CLICHY |
| Code postal | 92110 |
| Type de bien | Appartement |
| Surface | 92 m2 |
| Nombre de pièces | 5 pièces |
| Prix | 449 000,00 € |
| Informations sur l'annonceur | |
|---|---|
| Annonce de professionnel |
|
| Agence | IMAX CLICHY - LEVALLOIS Voir toutes les annonces |
| Adresse | 23, rue DAGOBERT |
| 92110 CLICHY | |
| Téléphone Fixe | 0185016060 |
| Portable | 0613980818 |
Description
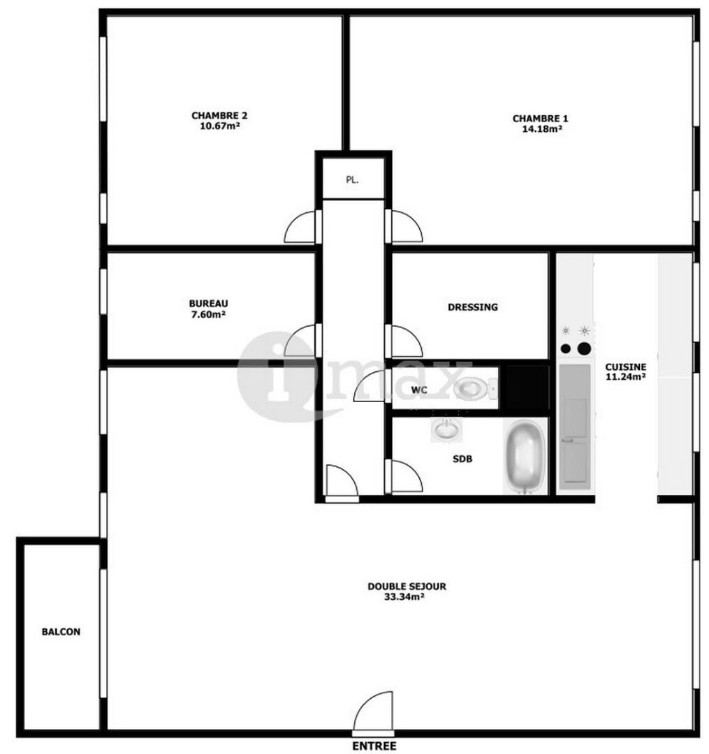
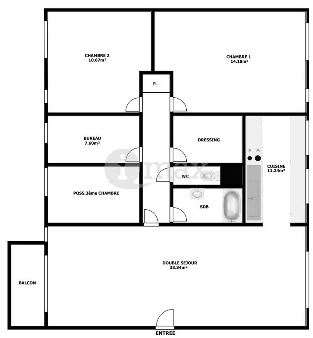
A proximité de la Mairie, du métro Mairie de Clichy (ligne 13), de tous les commerces, Imax vous propose cet appartement familial à l'agencement idéal en étage élevé au sein d'un immeuble semi récent avec gardien. Il se compose d'un double séjour lumineux et traversant donnant accès à un balcon, d'une grande cuisine indépendante aménagée, d'un bureau, de 2 chambres (poss. 3ème chambre), d'un dressing, d'une salle de bain, d'un wc séparé. Une cave et un local vélo complètent ce bien. Mandat de vente simple: V598 (3.94 % honoraires TTC à la charge de l'acquéreur.) Copropriété de 60 lots (Procédure en cours). Charges annuelles : 4920 euros.