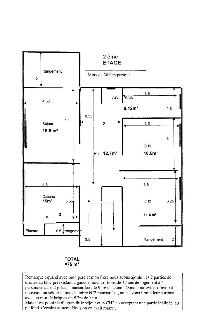
En vente Maison 7 pièces 163 m2
| Ville | AIX LES BAINS |
| Code postal | 73100 |
| Type de bien | Maison |
| Surface | 163 m2 |
| Nombre de pièces | 7 pièces |
| Prix | 499 000,00 € |
| Informations sur l'annonceur | |
|---|---|
| Annonce de professionnel |
|
| Agence | RivierAlp'Immo Voir toutes les annonces |
| Adresse | |
| 73100 Aix-les-Bains | |
| Téléphone Fixe | 0669690382 |
Description
EXCLUSIVITÉ : Maison de Caractère à fort potentiel . Quartier Grand Port Prix : 499 000 euros | 162 m² | Terrain 695 m²| Sous-sol complet Située au 148 Avenue du Grand Port, cette villa de 1970 offre une opportunité rare de concilier vie de quartier dynamique, proximité du Lac et calme absolu. Les Atouts Majeurs : Emplacement de 1er Choix : A deux pas du lac, du port et des plages. Vie Quotidienne Facilitée : Proximité immédiate des commerces, des écoles et du centre hospitalier, accessible en quelques minutes. Modularité Totale : Actuellement divisée en 2 appartements indépendants. Idéal pour un projet bi-familial, un investissement locatif à fort rendement ou une grande résidence familiale. Extérieur Privilégié : Terrain clos et arboré de 695 m², sans vis-à-vis. Un véritable havre de paix. ? Potentiel et Confort : Zéro Charge : Vente en pleine propriété (pas de copropriété). Volume et Lumière : 162 m² habitables + sous-sol. Beaux volumes à rafraîchir pour créer un intérieur à votre image. Une adresse convoitée alliant confort urbain et cadre de villégiature. Pour plus d'informations sur les risques potentiels liés à ce bien, consultez le site : www.georisques.gouv.fr Contactez-nous sans tarder pour une visite ! MARCHANDS DE BIENS S'ABSTENIR