Description
RUE DE SEVRES - BON MARCHE - Produit rare
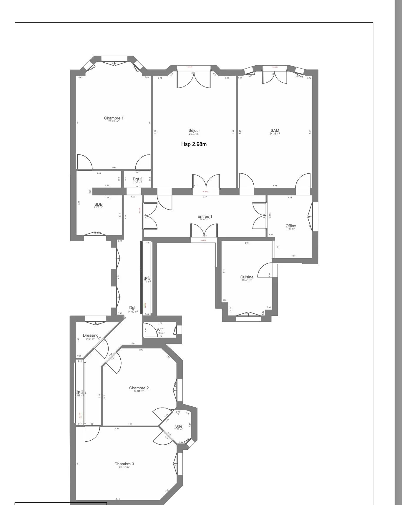
Dans un très bel immeuble ancien, récemment ravalé, aux belles parties communes, un appartement familial et de réception situé au 2ème étage (seul à l'étage) avec ascenseur, d'une superficie de 174 m2.
Il se compose d'une entrée, un séjour et une salle à manger sur rue avec une une cuisine dinatoire avec un office, une buanderie, une suite parentale avec sa salle de bains, 2 chambres et une salle d'eau et 2 wc.
Possibilité de créer une 4ème chambre à la place de la cuisine et installer la cuisine dans la salle à manger. (voir plan)
Exposé Sud Est. Excellent plan sans perte de place. Tout le charme de l'ancien, parquet , moulures et cheminées. Belle hauteur sous plafond. Bon état.Nombreux rangements. Local à vélos.
Une double cave complète ce bien.
Possibilité d'acquérir en sus du prix une chambre de service entièrement rénovée de 9,03m2 LC et 10,18m2 au sol (DPE F).
Gardienne dans l'immeuble.
A quelques pas du Bon Marché, proche du Jardin du Luxembourg, des commerces et des lycées Victor Duruy, Stanislas, et l'Ecole Alsacienne. Métros à proximité.
N'hésitez pas à me contacter Nathalie PARISEARCH
au 06 15 45 84 66
“Les informations sur les risques auxquels ce bien est exposé sont disponibles sur le site Géorisques http://www.georisques.gouv.fr”. Nathalie TARTOUR +33615458466