En vente Appartement 4 pièces 85 m2
| Ville | CLICHY |
| Code postal | 92110 |
| Type de bien | Appartement |
| Surface | 85 m2 |
| Nombre de pièces | 4 pièces |
| Prix | 750 000,00 € |
| Informations sur l'annonceur | |
|---|---|
| Annonce de professionnel |
|
| Agence | IMAX CLICHY - LEVALLOIS Voir toutes les annonces |
| Adresse | 23, rue DAGOBERT |
| 92110 CLICHY | |
| Téléphone Fixe | 0185016060 |
| Portable | 0613980818 |
Description
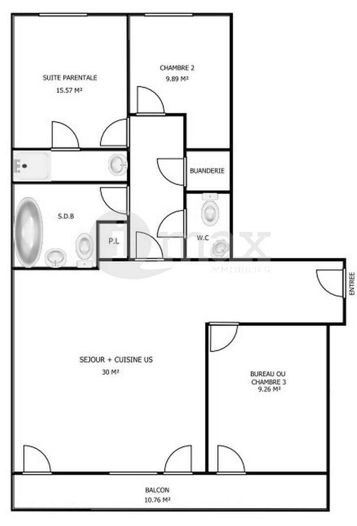
En plein coeur du secteur République, au sein de la nouvelle résidence Atrium édifié en 2023, à deux pas du métro St-Ouen (ligne 14 et 13), de tous les commerces, des écoles et du Parc Roger Salengro, venez découvrir ce superbe appartement familial en étage élevé. Imax vous propose cet appartement parfaitement agencé et lumineux. Il se compose d'une entrée, d'un vaste séjour avec cuisine aménagée et équipée, d'un grand balcon exposé sud-ouest, de trois chambres dont une suite parentale avec salle d'eau attenante, d'une buanderie / dressing, d'une salle de bain avec WC séparé. Une cave, un emplacement de parking avec borne de recharge électrique et un local vélo/poussettes complètent ce bien. Calme, confort et prestations de gamme, à visiter rapidement ! Mandat simple : V616 (2.60 % honoraires TTC à la charge de l'acquéreur.) Copropriété de 46 lots. Charges annuelles : 3592 euros.