En vente Appartement 3 pièces 76 m2
| Ville | VILLEURBANNE |
| Code postal | 69100 |
| Type de bien | Appartement |
| Surface | 76 m2 |
| Nombre de pièces | 3 pièces |
| Prix | 290 000,00 € |
| Informations sur l'annonceur | |
|---|---|
| Annonce de professionnel |
|
| Agence | VALORITY ADMINISTRATION DE BIENS Voir toutes les annonces |
| Adresse | 94, Quai Charles de Gaulle |
| 69006 Lyon | |
| Téléphone Fixe | 0970808085 |
Description
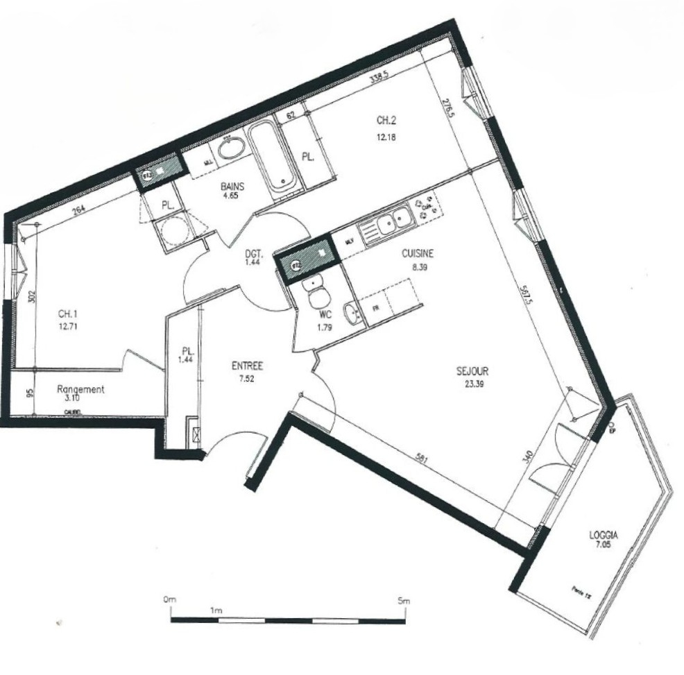
VILLEURBANNE - Avenue Auguste Blanqui. A proximité de toutes les commodités. Cet appartement T3 d'une superficie d'environ 76 m² se situe au 6ème étage d'une résidence de 2006. Il se compose : - d'une entrée avec grand rangement - d'un séjour avec cuisine ouverte de 31 m² - d'un balcon de 7 m² - de deux chambres d'environ 12 m² chacune avec placards - d'une salle de bains - d'un WC indépendant Un garage en sous-sol complète ce bien. Chauffage individuel électrique. Charges annuelles : 1 596 euros. Ses atouts : Emplacement, proche commerces, ligne de bus au pied de l'immeuble, étage élevé, balcon et garage. Copropriété de 78 lots - dont 39 lots habitation. Charges annuelles : 1596 euros.