En vente Terrain 900 m2
| Ville | Brignais |
| Code postal | 69530 |
| Type de bien | Terrain |
| Surface | 900 m2 |
| Nombre de pièces | |
| Prix | 299 000,00 € |
| Informations sur l'annonceur | |
|---|---|
| Annonce de professionnel |
|
| Agence | OUEST IMMO CONSEILS Voir toutes les annonces |
| Adresse | Angle 107 rue Pierre Dumond et 2 rue Bergeron |
| 69290 Craponne | |
| Téléphone Fixe | 0478448866 |
Description
NOUVEAUTÉ PRINTEMPS 2026 - EXCLUSIVITE FRANCHISE OUEST IMMO vous propose sur Grigny, dans un quartier calme et hors lotissement, venez découvir dans une petite rue, accès par un parc, un superbe terrain à batir de près de 918m2 plat, et arboré.
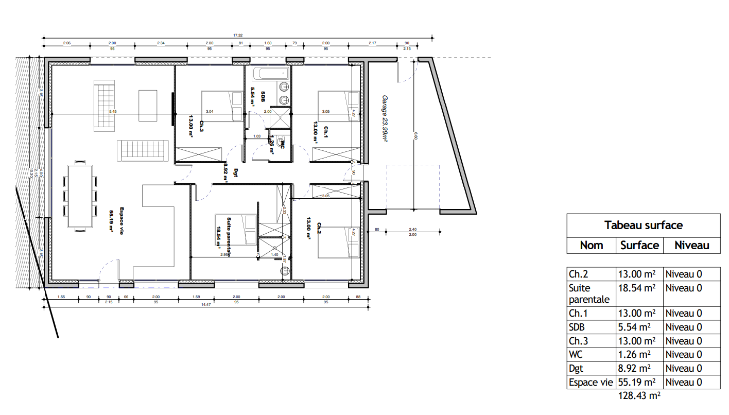
Ce terrain peut acceuillir une maison de plain pied ou même deux logements pour un projet multifamiliale intergenerationel. PC obtenu pour maison de 217m2 avec garage.
Droit à construire important, possibilité de faire également une piscine.
Pour pllus de renseignement et visite contactez nous o6x82x39x61x16 Bernard Montillet o6x67x11x22x11 avec la référence 0218a.
Les photos du bien
Les diagnostics
Les informations complémentaires
NOUVEAUTÉ PRINTEMPS 2026 - BEAU TERRAIN PLAT ET ARBORE DANS
Prix de vente honoraires TTC inclus : 299 000 €