En vente Appartement 3 pièces 76 m2

Ville Paris 11ème
Code postal 75011
Type de bien Appartement
Surface 76 m2
Nombre de pièces 3 pièces
Prix 758 000,00 €
Informations sur l'annonceur
Annonce de professionnel
Agence SARL VILLARET IMMOBILIER
Voir toutes les annonces
Adresse 35 Rue de Charonne
75011 Paris 11ème
Téléphone Fixe 0153447474

Description

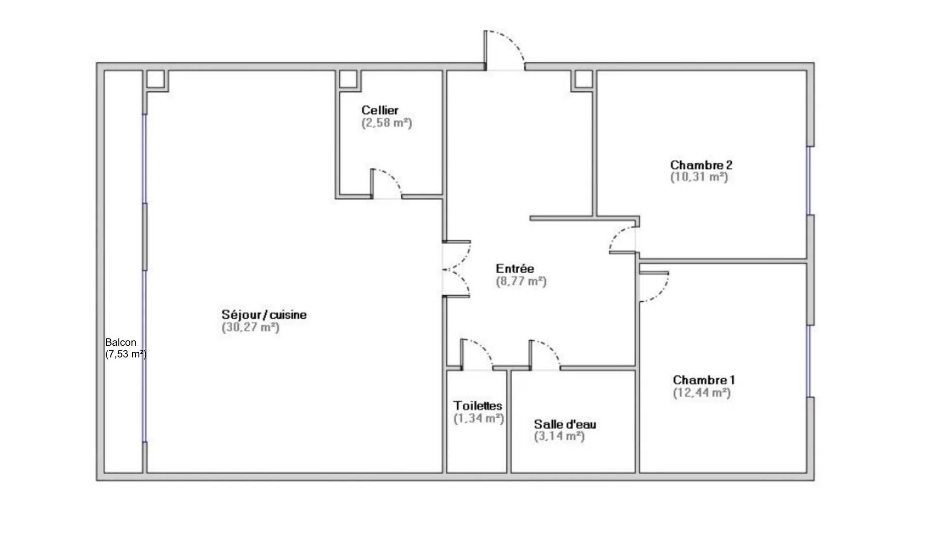
Dans un quartier vivant et résidentiel, à proximité immédiate des commerces et des transports, Villaret Immobilier vous propose à la vente ce bel appartement traversant de 3 pièces d’une surface de 68,85 m² + Balcon de 7,53m². Situé au 4ᵉ étage avec ascenseur d’un immeuble des années 70 parfaitement entretenu, avec gardien, cet appartement se compose d'une entrée avec rangements, d'un séjour lumineux prolongé par un agréable balcon de 7,60 m², d'une cuisine ouverte aménagée et équipée, de deux chambres sur cour au calme absolu, d'une salle d'eau, d'une buanderie et d'un W.C. séparé. Vous serez séduits par la luminosité et la rénovation de l'appartement ainsi que par le quartier vivant côté rue Jean-Pierre Timbaud et paisible côté square de Belleville. Les parties communes de l'immeuble on été récemment rénovées ainsi que la chaudière de l'immeuble. La copropriété dispose d'un gardien, de 2 locaux à vélos et l'appartement est vendu avec un emplacement de parking accessible par ascenseur.

Les photos du bien

Les diagnostics