En vente Terrain 6 pièces 2499 m2

Ville Zonza
Code postal 20144
Type de bien Terrain
Surface 2499 m2
Nombre de pièces 6 pièces
Prix 560 000,00 €
Informations sur l'annonceur
Annonce de professionnel
Agence Bastien CLESSI-BECONCINI
Voir toutes les annonces
Adresse
20144 Sainte-Lucie-de-Porto-Vecchio
Négociateur Casa Terra Real Estate
Téléphone 06-18-35-85-11

Description

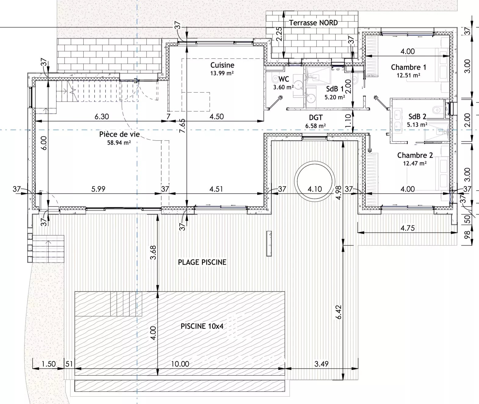
ETASU2 - Terrain avec PC purgé pour villa et piscine / Cabanon bleu réf : 'Étasu2'



À 950 m de la plage du Cabanon Bleu accessible par un chemin piéton, dans une zone naturelle et protégée, 'Étasu2' est un terrain à bâtir démaquisé et borné d'une surface de plus de 2 499 m².



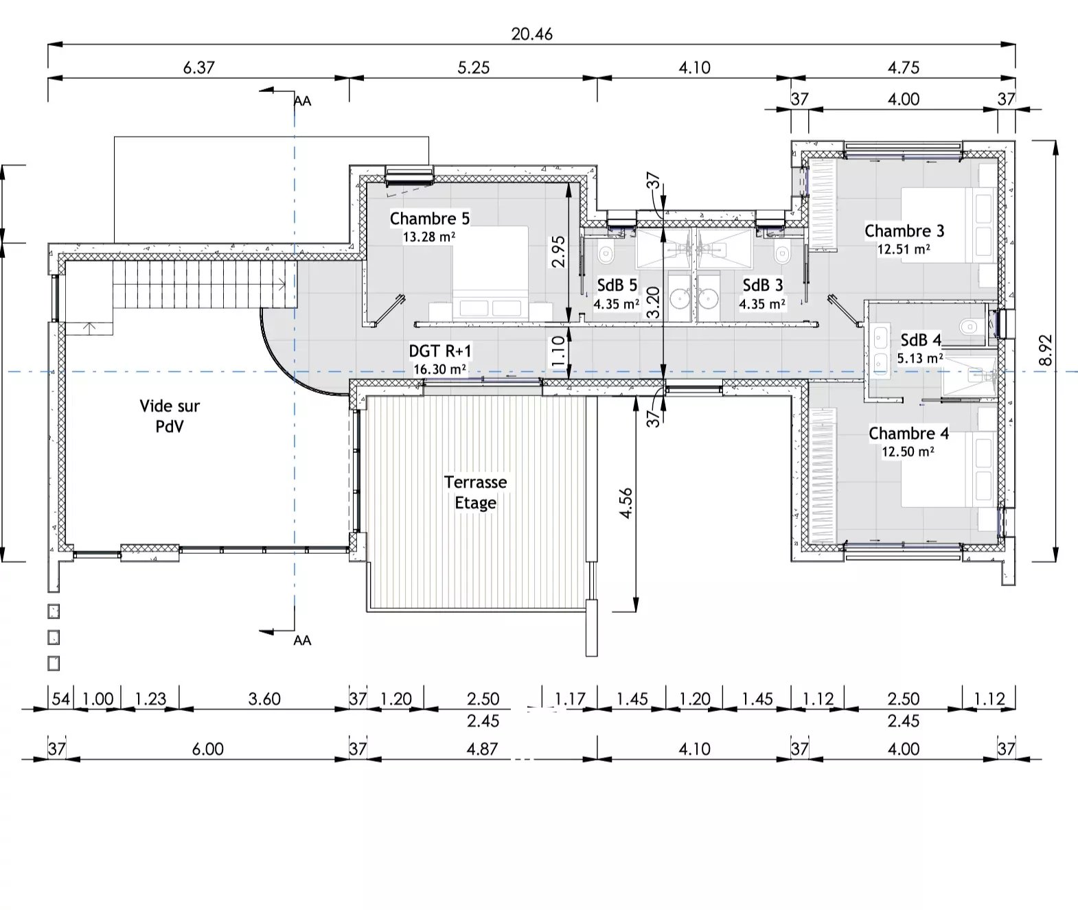
Le terrain est vendu avec un permis de construire purgé de tout recours qui permet la réalisation d'une villa à l'architecture contemporaine de 200 m² habitables sur 2 niveaux.



Exposée Sud, la villa à construire devra respecter la Réglementation Thermique 2012 et elle sera composée :



- d'une pièce de vie de 60 m² baignée de lumière avec double hauteur sous plafond comprenant salon, salle à manger,

- une cuisine ouverte de 14 m²,

- de 5 suites parentales avec 5 salles d'eau,

- d'une piscine 10 x 4 m

- et plus de 130 m² de terrasses bois



Notre agence pourra vous orienter sur le choix des entreprises, des artisans et l'organisation des travaux pour une construction et une livraison clé en main.



Prévoir un budget total de 1,6 millions d'euros tout compris : terrain + droit de mutation + études diverses avant travaux + taxes dont la taxe d'aménagement + coût des travaux + suivi des travaux.



Le terrain est entièrement viabilisé, l'assainissement collectif, l'électricité, l'eau ainsi que la fibre optique sont en limites de parcelle.



Les parcelles en face de la villa sont en zone protégée du littoral et par conséquent inconstructibles. Elles resteront ainsi vierge de toute construction.



Le terrain bénéficie d'une bonne localisation avec l'ensemble des commerces, supermarchés, boulangeries, restaurants à 10 min en voiture, Porto-Vecchio est à 15 min tandis que l'aéroport de Figari se trouve à 40 min.



- Casa Terra - Real Estate - est une agence immobilière confidentielle spécialisée dans la transaction de biens de prestige mais également un cabinet de conseil présent sur Sainte-Lucie de Porto-Vecchio et Paris -



Honoraires à la charge du vendeur.

Les photos du bien

Les diagnostics