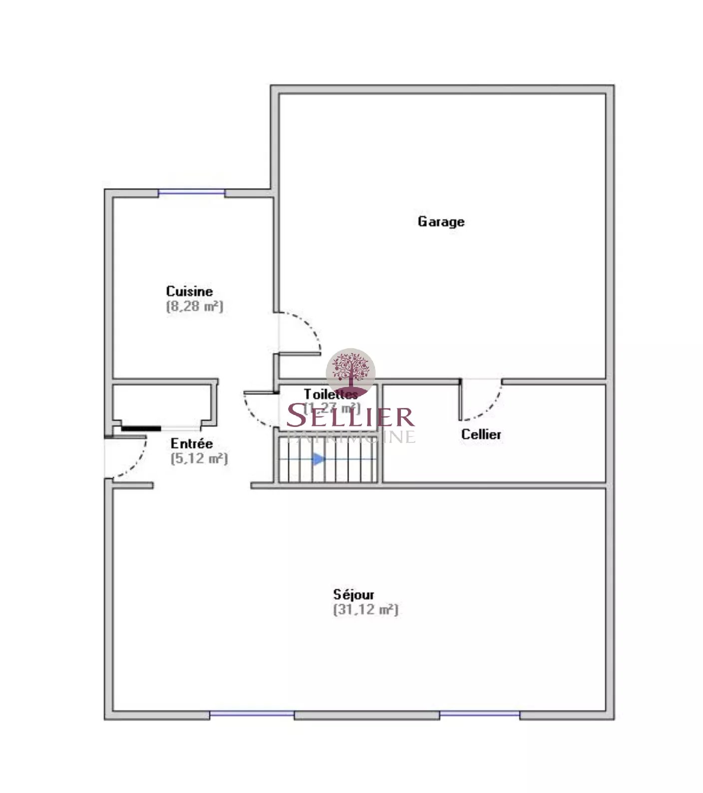
En vente Maison 6 pièces 141 m2

Ville Longjumeau
Code postal 91160
Type de bien Maison
Surface 141 m2
Nombre de pièces 6 pièces
Prix 380 000,00 €
Informations sur l'annonceur
Annonce de professionnel
Agence Sellier Patrimoine
Voir toutes les annonces
Adresse 11 rue des fossés Saint-Marcel
75005 Paris 5ème

Description

Scopri questo ampio padiglione di 141 m² situato nella tranquilla cittadina di Longjumeau, perfetto per chi cerca spazio, comfort e luce naturale. La zona giorno è caratterizzata da un grande soggiorno con doppie porte-finestre in PVC e vetri doppi, che si aprono sul giardino privato, creando un ambiente luminoso e conviviale ideale per la famiglia e per ospiti. La casa offre quattro accoglienti camere da letto e un totale di sei stanze, offrendo flessibilità per ogni esigenza, dagli spazi notte agli ambienti studio o hobby. Gli infissi in PVC e il doppio vetro garantiscono un ottimo isolamento termico ed acustico, favorendo il risparmio energetico e la tranquillità dell’abitazione. Il giardino, circondato da alberi, rappresenta un rifugio di relax all’aperto, ideale per momenti di svago, giochi per bambini o pranzi all’aperto. Una soluzione ideale per famiglie che vogliono vivere in un ambiente verde senza rinunciare ai comfort moderni.

Les photos du bien

Les diagnostics

Contacter