En vente Appartement 3 pièces

Ville Paris 16ème
Code postal 75016
Type de bien Appartement
Surface
Nombre de pièces 3 pièces
Prix 775 000,00 €
Informations sur l'annonceur
Annonce de professionnel
Agence ASM immobilier
Voir toutes les annonces
Adresse 91, av Marceau
92400 Courbevoie
Téléphone Fixe 0182077567

Description

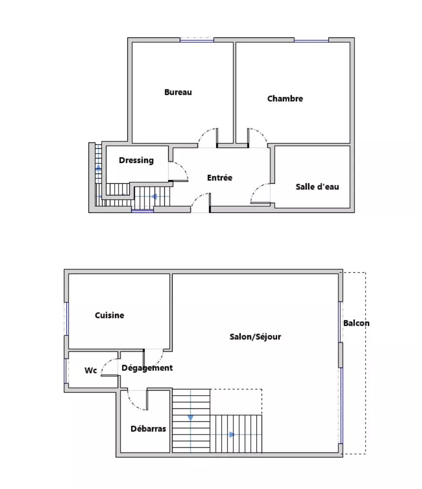
ASM IMMOBILIER vous présente ce duplex rare de 3 pièces (65 m²), niché au calme absolu sur jardins, dans le secteur prestigieux de Passy. Pourquoi ce bien est unique ? Accès Privilégié : Entrée quasi de plain-pied (4 marches seulement), tout en étant en 3ème et 4ème étages côté jardin. Le confort du RDC avec la vue de l'étage ! Calme Absolu : Aucun voisin au-dessus de vous. Lumière : Séjour sur balcon filant exposé Sud-Ouest avec vue sur verdure. L'agencement : Espace Vie (Haut) : Séjour lumineux, cuisine indépendante, WC avec lave-mains et rangements. Espace Nuit (Bas) : 2 chambres avec placards, un dressing et une salle de douche avec WC. Potentiel & Services : À rénover : Une opportunité idéale pour créer un intérieur moderne et sur-mesure. Annexes : Cave incluse. Possibilité de louer un parking dans l'immeuble. Copropriété : Standing, gardien, interphone et Vigik. Chauffage & eau chaude collectifs. Un véritable "esprit maison" au cœur du 16ème. À visiter sans tarder !

Les photos du bien

Les diagnostics