En vente Terrain

Ville Coulommiers
Code postal 77120
Type de bien Terrain
Surface
Nombre de pièces
Prix 199 000,00 €
Informations sur l'annonceur
Annonce de professionnel
Agence Cimm Immobilier by Valente
Voir toutes les annonces
Adresse 2a Rue du General Leclerc
77120 Coulommiers
Téléphone Fixe 0604098966

Description

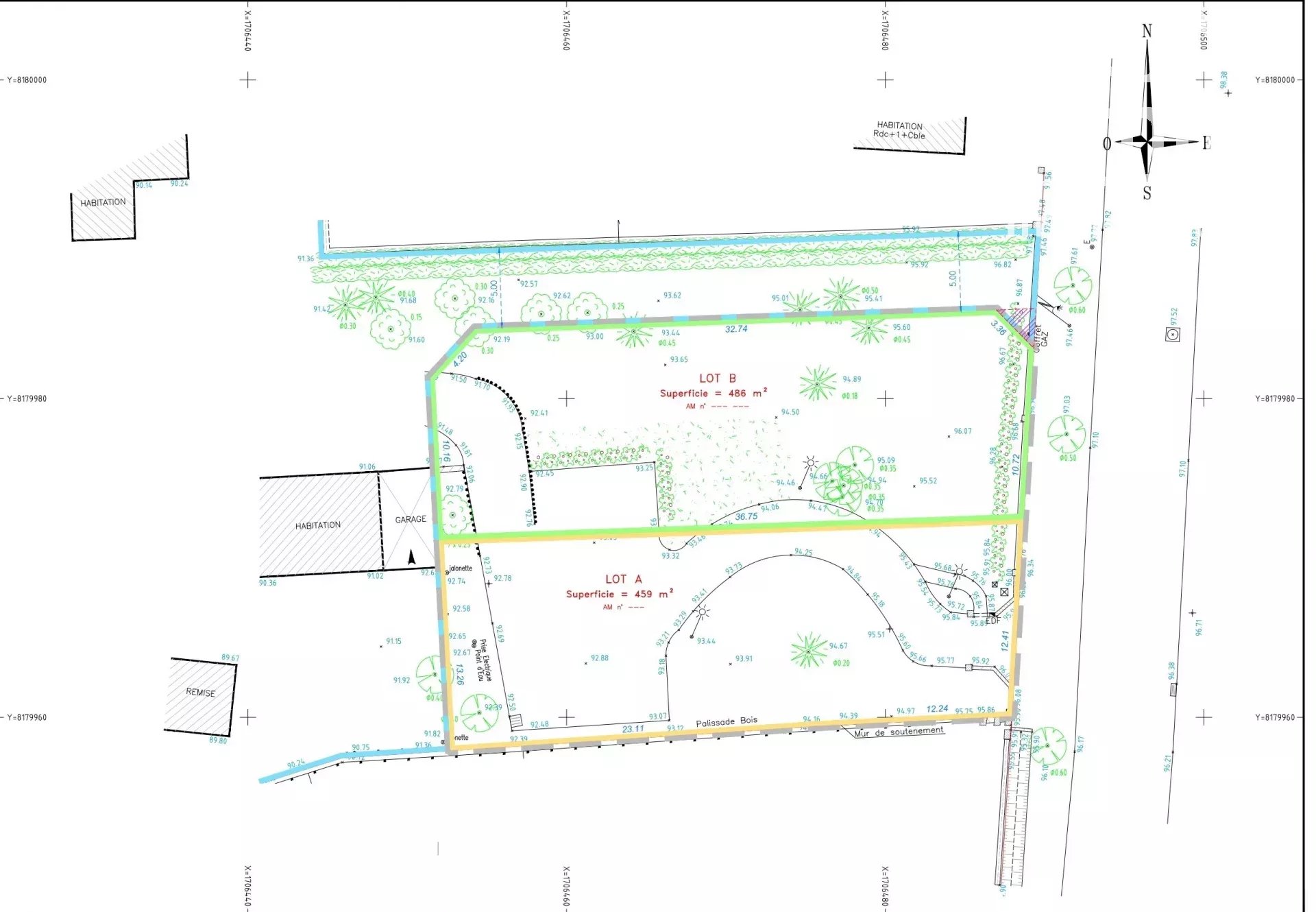
L’agence Cimm Immobilier vous propose deux lots de terrain à bâtir, d’une surface totale de 954 m², idéalement situés dans un secteur recherché de Coulommiers. Les atouts majeurs : Exposition EST / OUEST offrant une belle luminosité Façade de 25 mètres, idéale pour divers projets de construction Situé en zone UBa du PLU, permettant de nombreuses possibilités d’aménagement (maison individuelle, projet double habitation, investissement groupé…) Viabilisation : Réseaux en façade (eau, électricité, tout-à-l’égout, fibre) Un potentiel rare sur le secteur, parfait pour un projet de résidence principale ou un investissement. Pour plus d’informations ou organiser une visite, contactez dès maintenant votre agence Cimm Immobilier. Les informations sur les risques auxquels ce bien est exposé sont disponibles sur le site Géorisques : www.georisques.gouv.fr Prix de vente honoraires d'agence Inclus 199 000€ Honoraires charge vendeur. Sas Projeto Consult - RCS 851189092 Cimm Immobilier By Valente - Contact Frédéric VALENTE 07 87 00 63 53 - Carte Professionnelle CPI77012022000000014

Les photos du bien

Les diagnostics