En vente Maison 5 pièces 117 m2

Ville Sanary-sur-Mer
Code postal 83110
Type de bien Maison
Surface 117 m2
Nombre de pièces 5 pièces
Prix 815 000,00 €
Informations sur l'annonceur
Annonce de professionnel
Agence Sajatim
Voir toutes les annonces
Adresse
83500 Seyne sur Mer
Téléphone Fixe 0494640048

Description

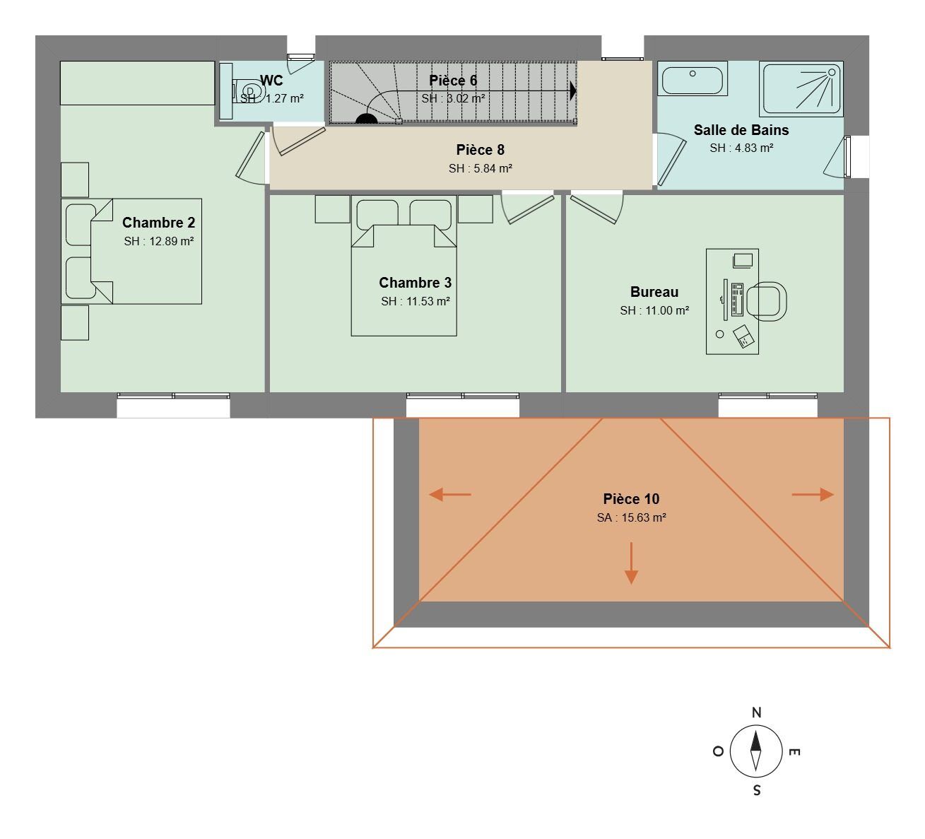
SANARY-SUR-MER – Quartier très recherché de BeaucoursProjet de villa T5 de 117 m² – Terrain de 473 m² – À deux pas de la merDans le secteur prisé de Beaucours, à seulement quelques pas de la mer et 300 m des commerces, découvrez ce projet de villa T5 de 117 m², idéalement implanté sur un terrain calme de 473 m², piscinable. Un projet moderne et personnalisableLa villa se compose : D'un spacieux séjour / cuisine de 45 m², ouvert sur une belle terrasseD'une suite parentale de plain-pied avec salle d'eau et wcÀ l'étage : 2 chambres et un bureau (ou 3 chambres selon vos besoins) Une salle d'eauwc indépendantsPrestations prévuesClimatisation réversibleChauffe-eau thermodynamiqueTerrain piscinableEnvironnement calme et résidentiel (le budget indiqué ne comprend pas la piscine) Informations complémentaires, norme RT2020Le prix comprend les VRD et les viabilités, sous réserve de validation après étude technique, devis de terrassement et ajustement selon les contraintes du terrain. Une opportunité rare de construire votre villa sur-mesure dans l'un des quartiers les plus recherchés de Sanary-sur-Mer, entre mer et commodités. ? Contactez-nous pour étudier votre projet ! 06 72 21 89 44 ou 06 16 12 55 88Non soumis au DPE. Les informations sur les risques auxquels ce bien est exposé sont disponibles sur le site Géorisques : georisques. gouv. fr.Informations LOI ALUR : Honoraires charge acquéreur. Prix hors honoraires : 815 000 ¤. (gedeon_34002_32943188)

Les photos du bien

Les diagnostics

Les informations complémentaires

Villa contemporaine t5 de 117 m²
Prix de vente honoraires TTC inclus : 815 000 €