En vente Appartement 4 pièces
| Ville | Cagnes-sur-Mer |
| Code postal | 06800 |
| Type de bien | Appartement |
| Surface | |
| Nombre de pièces | 4 pièces |
| Prix | 645 000,00 € |
| Informations sur l'annonceur | |
|---|---|
| Annonce de professionnel |
|
| Agence | La belle agence Voir toutes les annonces |
| Adresse | 15 Rue Alberti |
| 06000 Nice |
Description
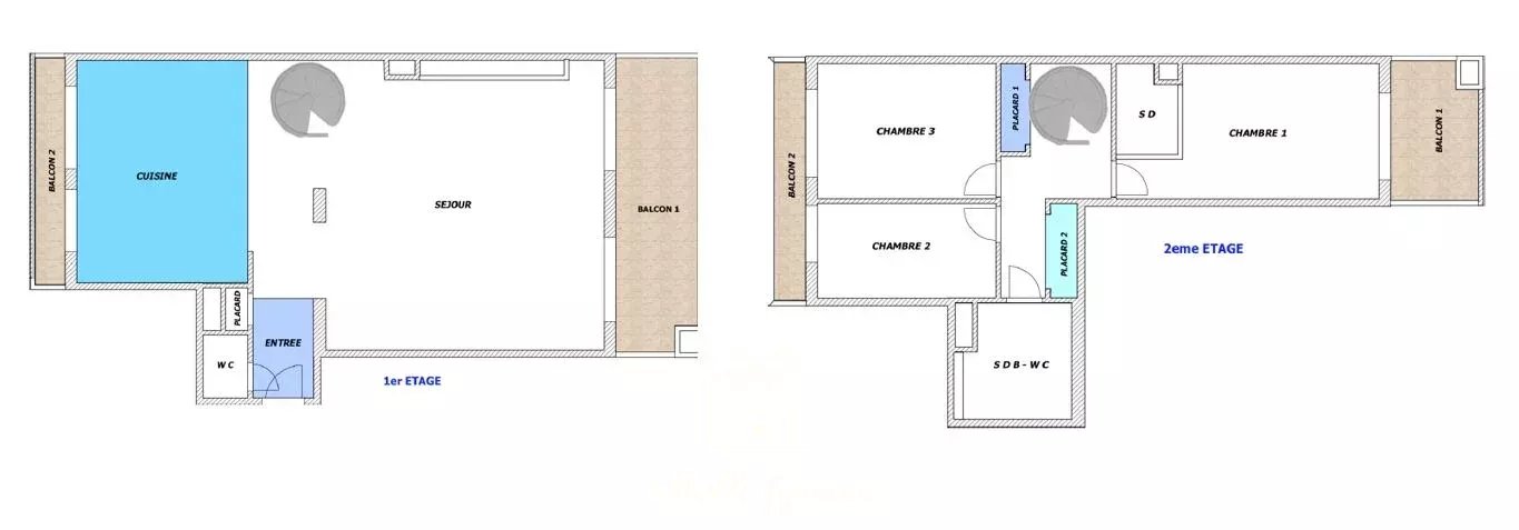
CAGNES-SUR-MER : À seulement quelques pas de la mer, des commerces, des écoles et des transports, découvrez ce superbe duplex entièrement rénové en 2023, situé dans un environnement calme et agréable: 110 m² baignés de lumière avec un exposition plein sud. Au premier niveau : Un magnifique espace de vie de plus de 60 m² avec séjour et cuisine ouverte, idéal pour recevoir, un WC indépendant et de nombreux rangements. À l’étage : Trois chambres, chacune avec son extérieur, dont une suite parentale avec vue dégagée et aperçu mer. Une belle salle de bains moderne avec WC et des espaces de rangement complètent cet étage. Les + : - Aucun travaux à prévoir - Rénovation récente (2023) - Luminosité exceptionnelle - Cave incluse - Grand garage (+16 m²) - Place de parking en supplément - Possibilité d’acquérir le bien meublé Un bien rare sur le secteur, idéal pour une famille en résidence principale ou secondaire. Classe énergie C - Copropriété de 39 lots principaux - Charges mensuelles 247€ - Taxe foncière 1899€ - Pas de procédure en cours à notre connaissance. Les informations sur les risques auxquels ce bien est exposé sont disponibles sur le site Géorisques : georisques.gouv.fr