En vente Appartement 5 pièces 144 m2

Ville Paris 17ème
Code postal 75017
Type de bien Appartement
Surface 144 m2
Nombre de pièces 5 pièces
Prix 1 870 000,00 €
Informations sur l'annonceur
Annonce de professionnel
Nom
Adresse
75017
Téléphone Fixe 0014529090

Description

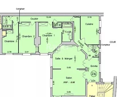
EXCLUSIVITE – JOUFFROY D'ABBANS - PRONY - Au cœur de la Plaine Monceau, dans un très bel immeuble haussmannien de standing avec gardien et parfaitement sécurisé, Ravier Immobilier vous propose un appartement à rafraichir de 5 pièces 144.37 m2 situé au 5ème étage avec ascenseur entièrement au calme sur cour arborée. Appartement, à la fois élégant et fonctionnel. Il se compose d’une entrée accueillante, d’un vaste double séjour, d’une grande cuisine, trois chambres, une salle de bains, une salle de douche et deux toilettes. Deux caves en sous-sol complètent ce bien d’exception. Une place de parking proposée en sus est également disponible. Idéal pour profiter pleinement du confort et de la qualité de vie qu’offre ce quartier recherché, à proximité immédiate du parc Monceau, des commerces et des transports. Métro : WAGRAM (220M) Sectorisation : Ecole maternelle: RENAUDES Ecole élémentaire: FOURCROY Collège: CARNOT Cet appartement reflète tout le charme de l’haussmannien : parquet, élégantes moulures, cheminées. Immeuble soumis au régime de la copropriété : LOI ALUR : Aucune procédure en cours à ce jour sur le fondement des articles 29-1 A et 29-1 de la loi n°65-557 du 10 juillet 1965, ni de l’article L.615-6 du Code de la Construction et de l’Habitation. Un état actualisé des procédures sera demandé au syndic pour le jour de la signature du compromis ou de la promesse de vente. Honoraires agence charge vendeur. DPE: (D) 224 kWh/m²/an // (D) 49 kg CO2/m2/an – 220 kWh/m²/an d’énergie finale. Estimation des coûts annuels d’énergie du logement : entre 1 720 € et 2 380 € par an. Les informations sur les risques auxquels ce bien est exposé sont disponibles sur le site Géorisques : www.georisques.gouv.fr Notre barème d'honoraires est disponible sur www.ravier-immobilier.com

Les photos du bien

Les diagnostics