En location Appartement 2 pièces 30 m2
| Ville | Montpellier |
| Code postal | 34000 |
| Type de bien | Appartement |
| Surface | 30 m2 |
| Nombre de pièces | 2 pièces |
| Prix | 700,00 € |
| Informations sur l'annonceur | |
|---|---|
| Annonce de professionnel |
|
| Agence | Devier Immobilier Voir toutes les annonces |
| Adresse | |
| Téléphone Fixe | 0467222800 |
Description
Quartier Rives du Lez à Montpellier, idéalement situé près de la Nouvelle Mairie, du tram et des commerces, ainsi que du Lez.
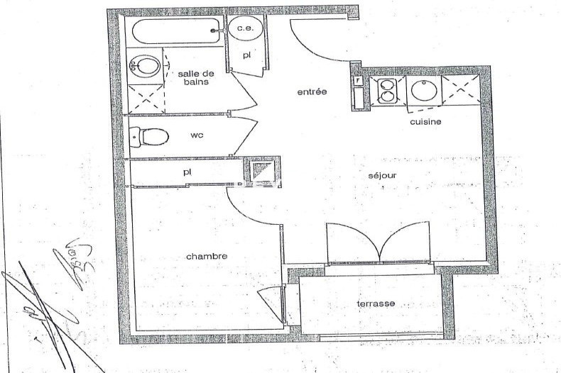
Vous y trouverez un appartement Type T1BIS / Faux T2, situé au premier étage d'un immeuble bien entretenu. Cet appartement propose un agencement compact. Il comprend une pièce principale avec sa cuisine, une loggia ensoleillée et orientée Sud Ouest. Une chambre avec un placard intégré, une salle de bains et une toilette séparé.
Une place de parking privée en sous-sol.
Loyer charges comprises : 700,00¤ dont 50,00¤ de provisions pour charges comprenant la consommation d'eau froide et les charges récupérables de copropriété.
Dépôt de garantie : 650,00¤
Honoraires à la charge du locataire : 303,20¤ dont 90,96¤ pour l'état des lieux.
Zone soumise à l'encadrement des loyers :
- Loyer de référence : 19,50¤/m²
- Loyer majoré : 23,40¤/m²
Montant estimé des dépenses annuelles d'énergie pour un usage standard : entre 590 ¤ et 830 ¤ par an. Prix moyens indexés sur l'année 2021, 2022 et 2023 (abonnements compris).