En vente Maison 8 pièces 141 m2

Ville PAIMPOL
Pays Autre
Type de bien Maison
Surface 141 m2
Nombre de pièces 8 pièces
Prix 319 640,00 €
Informations sur l'annonceur
Annonce de professionnel
Agence Agence Maison Rouge - Paimpol
Voir toutes les annonces
Adresse
22500 PAIMPOL
Téléphone Fixe 0296227452

Description

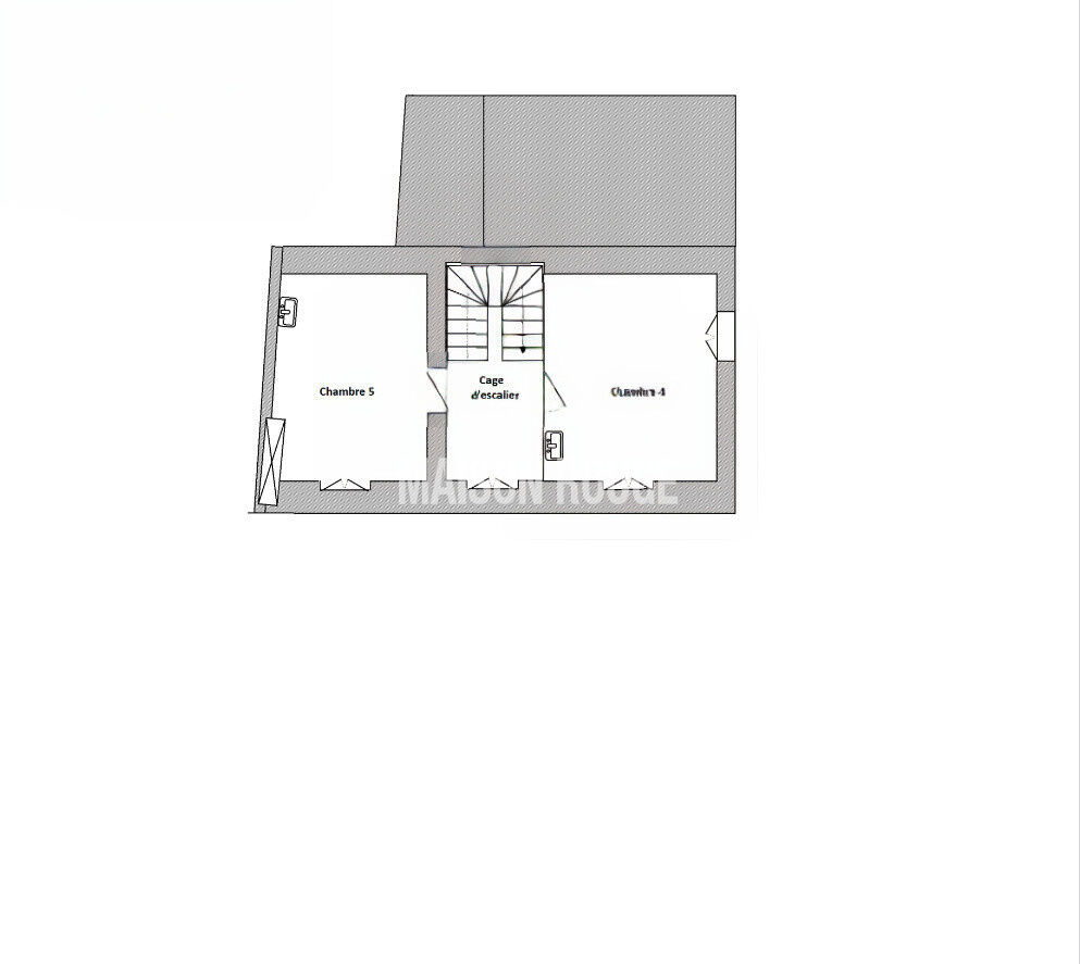
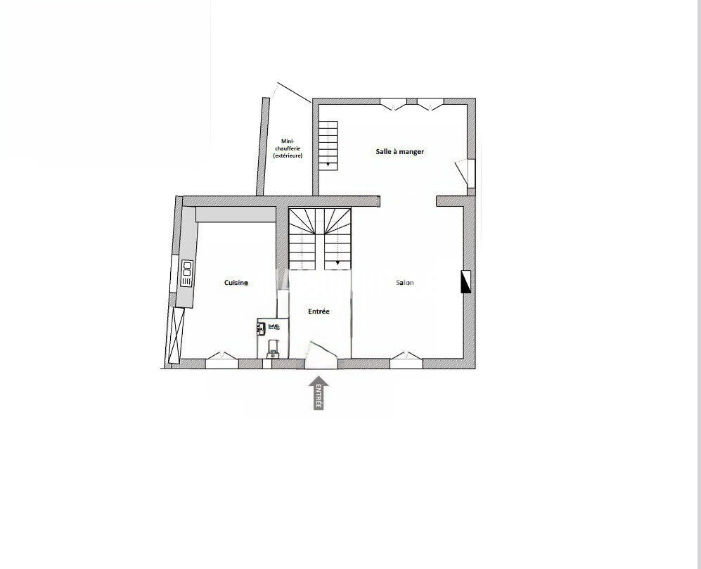
L'agence Maison Rouge vous propose à proximité du centre ville, des écoles et de la piscine, une belle maison en pierre sur une parcelle arboré de plus de 3000 m². Découvrez cette charmante demeure familiale d'environ 140 m² habitables, offrant de beaux volumes et un agencement idéal pour accueillir votre projet de vie. Dès l'entrée, vous serez séduit par un hall accueillant menant à une cuisine aménagée et équipée, ouverte sur un agréable espace repas. Le salon/séjour, chaleureux et lumineux, est sublimé par une belle cheminée avec insert, parfaite pour vos soirées conviviales. Un toilette avec lave-mains complète ce niveau. L'étage, accessible par deux escaliers distincts, propose une distribution originale et fonctionnelle : Par le premier escalier : une chambre et une salle d'eau, idéale pour un espace indépendant. Par le second : une salle de bains ainsi que deux belles chambres, dont une avec sa propre salle d'eau. Au deuxième étage, vous trouverez deux grandes chambres baignées de lumière, disposant d'un point d'eau, parfaites pour accueillir famille, amis ou aménager des espaces de travail. A l'extérieur, le jardin clos offre un cadre agréable avec une terrasse pour profiter des beaux jours. Vous disposerez également de trois dépendances, dont un garage, une serre et un puits, apportant de nombreuses possibilités d'aménagement. Cette maison, immédiatement habitable, séduit par son fort potentiel et ses multiples atouts. Situation idéale : à seulement quelques minutes à pied du port et du centre de Paimpol, profitez d'un cadre de vie recherché entre mer et commodités. Prix FAI : 319 640 euros dont 4.80 % honoraires TTC à la charge de l'acquéreur. Rachel PEREZ (EI) Agent Commercial - Numéro RSAC : 930 727 979 - SAINT BRIEUC.

Les photos du bien

Les diagnostics