En vente Immeuble 6 pièces 181 m2
| Ville | Marseille 6ème |
| Code postal | 13006 |
| Type de bien | Immeuble |
| Surface | 181 m2 |
| Nombre de pièces | 6 pièces |
| Prix | 545 000,00 € |
| Informations sur l'annonceur | |
|---|---|
| Annonce de professionnel |
|
| Agence | Skyline Real Estate Voir toutes les annonces |
| Adresse | 36 boulevard Gorbella |
| 06100 Nice |
Description
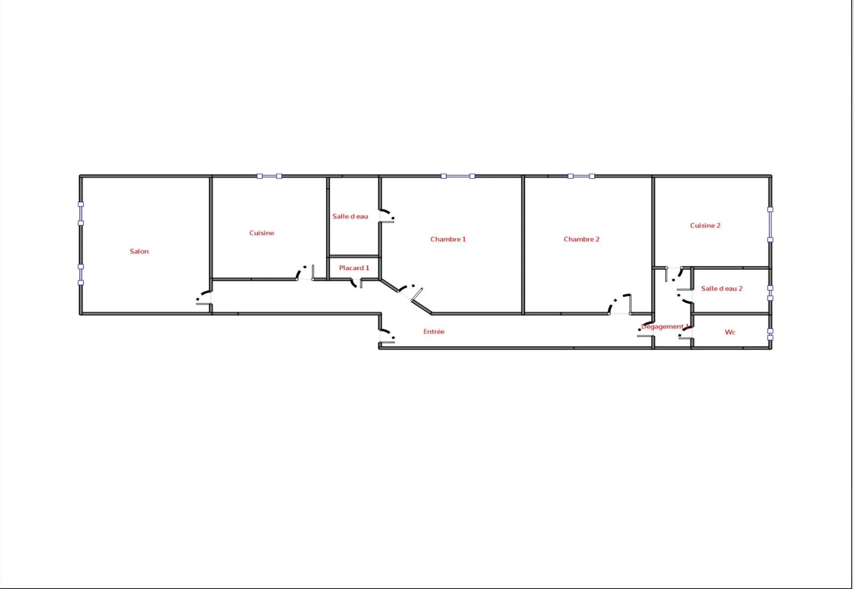
Skyline Real Estate vous présente un immeuble de caractère vendu libre à Vauban – Marseille 6ᵉ Idéalement situé en plein cœur du très recherché 6ᵉ arrondissement de Marseille, dans le quartier prisé de Vauban, Skyline Real Estate vous propose à la vente un immeuble offrant un fort potentiel de valorisation. Cet immeuble mono-propriété en bon état général se compose de : Un garage de 60 m² en rez-de-chaussée, offrant de nombreuses possibilités (stationnement, stockage ou transformation en local commercial) Un premier étage de 61 m², en bon état, nécessitant un simple rafraîchissement, avec un extérieur. Un deuxième étage, également de 61 m², au charme authentique avec ses tomettes au sol, à moderniser selon vos envies Les + du bien : -Façade en très bon état -Toiture saine, aucun gros œuvre à prévoir -Parties communes propres -Secteur recherché et dynamique Fort potentiel d’optimisation : Création d’un local commercial en rez-de-chaussée Division possible en 4 appartements type T2 Ou configuration en 2 T2 + 2 T3 en duplex, avec valorisation des combles Produit idéal pour investisseurs ou marchands de biens souhaitant réaliser une opération à forte rentabilité dans un secteur premium. Dossier complet sur demande. DPE E TF : La présente annonce immobilière a été rédigée sous la responsabilité de Aurélien Martel, mandataire indépendante en immobilier (sans détention de fonds), agent commercial de la SAS SKYLINE REAL ESTATE immatriculé au RSAC du Greffe du Tribunal de Commerce de Strasbourg sous le numéro 512 524 208, titulaire de la carte de démarchage immobilier pour le compte de la société SKYLINE SAS.