En vente Maison 5 pièces 145 m2

Ville Courmangoux
Code postal 01370
Type de bien Maison
Surface 145 m2
Nombre de pièces 5 pièces
Prix 239 000,00 €
Informations sur l'annonceur
Annonce de professionnel
Agence Sylvain BRIDON
Voir toutes les annonces
Adresse
01190 GORREVOD
Téléphone Fixe 0474502387

Description

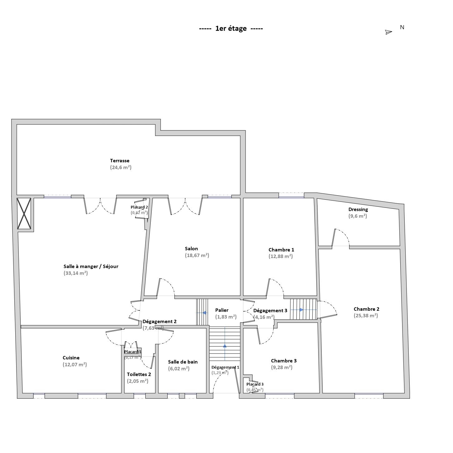
Au c?ur du charmant village de Courmangoux Roissiat, au pied du Revermont, découvrez cette superbe maison familiale en pierre, alliant authenticité et prestations de qualité. Un véritable coup de c?ur pour les amoureux de nature et de biens de caractère.


Caractéristiques principales :



?

Surface habitable : 144 m²



?

Terrain de 478 m² avec jardin et terrasse



?

Accès direct sur la terrasse depuis le séjour, le salon et la salle à manger



?

Prestations haut de gamme avec sol en marbre


Agencement :



?

Hall d?entrée



?

Salle à manger



?

Salon lumineux



?

Cuisine



?

Dégagement



?

Sol en marbre dans le hall, la salle à manger, le salon, la cuisine et le dégagement



?

Salle de bain entièrement en marbre également



?

WC avec lave-mains


Côté nuit :



?

3 chambres (33 m², 13 m² et 9 m²)
:



?

2 avec placards



?

1 avec dressing


Dépendances (rez-de-chaussée) :



?

2 garages (36 et 50 m²)



?

Chaufferie



?

Remise (11 m²)



?

Atelier (37 m²)



?

Superbe cave voûtée (24 m²)


Équipements & prestations :



?

Chaudière fioul récente (env. 10 ans) avec production d?eau chaude



?

Insert aux normes



?

Huisseries double vitrage neuves (2024)



?

Volets roulants motorisés sur toute la maison



?

Toiture en excellent état (aucun travaux à prévoir)



?

Raccordement au tout-à-l?égout



?

Fibre optique installée


Les + :



?

Maison en pierre pleine de charme



?

Matériaux nobles (marbre) apportant élégance et durabilité



?

Environnement calme, au c?ur du Revermont



?

Accès direct aux sentiers de randonnée



?

Bien rare, idéal résidence principale ou secondaire


Localisation : Courmangoux Roissiat à 22 km de Bourg-en-Bresse, 9 km de Marboz


Maison prête à vivre, sans travaux, alliant cachet et confort moderne

Prix de vente : 239 000 ? (Honoraires d'agence inclus à la charge du vendeur)


DPE : E - 253 kWh/m²/an (Les coûts annuels d'énergie du logement pour une utilisation standard sont estimé entre 3 830 ? et 5 230 ?, abonnement compris. Prix de énergies indexés sur les années 2021, 2022 et 2023) GES : E - 61 kgCO²/m²/an


« Les informations sur les risques auxquels ce bien est exposé sont disponibles sur le site Géorisques : www.géorisques.gouv.fr »

Pour plus d'informations, téléphonez à Isabelle MAITRE (Agent commercial RSAC N°840 692 529 greffe de Bourg en Bresse), Agence ImmoBresse au 06.10.11.34.34 ou à l'agence ImmoBresse au 04.74.50.23.87, retrouvez également cette annonce et toutes les annonces d'ImmoBresse sur www.immo-bresse.fr

Les photos du bien

Les diagnostics