En vente Appartement 3 pièces 116 m2
| Ville | Nice |
| Code postal | 06000 |
| Type de bien | Appartement |
| Surface | 116 m2 |
| Nombre de pièces | 3 pièces |
| Prix | 519 000,00 € |
| Informations sur l'annonceur | |
|---|---|
| Annonce de professionnel |
|
| Agence | NICE PROPERTIES Voir toutes les annonces |
| Adresse | 10 rue Masséna |
| 06000 Nice | |
| Téléphone Fixe | 0493015000 |
Description
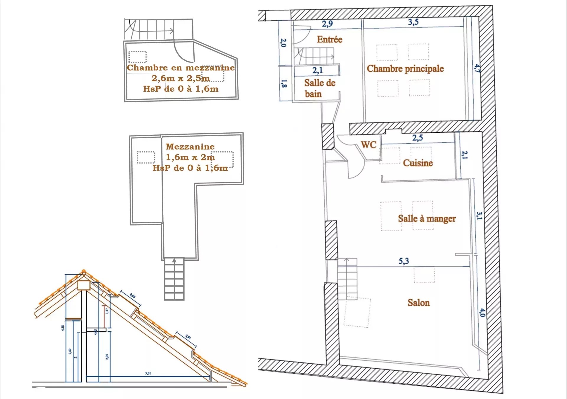
NICE CENTRE / CARRÉ D'OR : Emplacement de 1er choix à 400 mètres de la mer, au 5ème et dernier étage d'un immeuble bourgeois, accessible par ascenseur jusqu'au 4ème, proche de toutes les commodités, cet appartement atypique au charme fou, mansardé avec poutres apparentes, offre 116 m² au sol et presque 50 m² en loi carrez. L'entrée dessert le séjour avec cuisine ouverte équipée intégrant un îlot central, la chambre principale avec une penderie murale et 2 grands placards, une salle d'eau avec bains, douche et toilettes, un espace buanderie, des toilettes séparés avec lave-mains. Deux mezzanines offrent deux chambres mansardées avec lit double. Il bénéficie de 12 Vélux exposés Sud et Ouest équipés de volets électriques à commande vocale avec vue dégagée sur les toits. Domotique, climatisation réversible, double vitrage, volets électriques et de nombreux rangements sous pentes. A voir absolument. Honoraires d'agence 5% inclus à la charge du vendeur. Les informations sur les risques auxquels ce bien est exposé sont disponibles sur le site Géorisques : georisques.gouv.fr