Annonces en ligne
EXCLUSIVITE - A VENDRE - SAINT JEAN DE MONTS - Proche des Grandes Surfaces et à 1 km du Centre Ville, terrain à bâtir, viabilisé, de 259 m². Libre de constructeur. Réf.10250 Pour toute information complémentaire ou visite, contactez-nous au 02
A VENDRE - SAINT JEAN DE MONTS - Quartier de l'École de Voile, à deux pas de la Forêt, du Golf et de la Thalasso. Au rez de chaussée d'une résidence avec accès direct à la plage, agréable appartement, à la décoration soignée, comprenant
A VENDRE - SAINT JEAN DE MONTS - SPÉCIAL INVESTISSEUR - Situé en centre-ville, appartement de type 2 au 2ème et dernière étage d'une résidence de 2004 avec ascenseur. Logement loué à l'année depuis 2009 avec le même locataire, pas de diffi
EXCLUSIVITE - A VENDRE - SAINT JEAN DE MONTS Découvrez cette charmante maison située face à la Forêt Domaniale, offrant un cadre de vie verdoyant et apaisant. Cette maison se compose au rez-de-chaussée d'un séjour lumineux avec espace salon, d'
A VENDRE ? SAINT-JEAN-DE-MONTS ? Programme neuf ?Le Bois Valentin' Venez découvrir ce pavillon neuf de 84 m², en lisière de la forêt du Pays de Monts et à seulement 2,3 km des plages de sable fin (Plage des Demoiselles). La maison de type 4 se
EXCLUSIVITÉ - A VENDRE - SAINT JEAN DE MONTS - A seulement 800 mètres de la place de l'église et 2 km de la plage, terrain hors lotissement d'une surface d'environ 979m², non viabilisé. Zonage Ub2 (emprise au sol maximale fixée à 70%). Sous
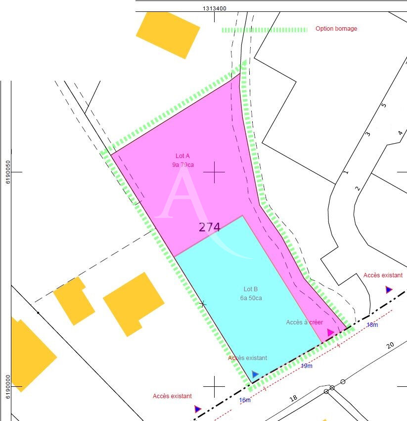
EXCLUSIVITE - A VENDRE - SAINT JEAN DE MONTS - Quartier de l'Hippodrome, des Tonnelles, à proximité immédiate de Notre Dame de Monts. A seulement 400 m de la plage, au calme, en lisière de la forêt domaniale et à proximité immédiate des pis
A VENDRE - SAINT JEAN DE MONTS - Située dans un secteur très prisé à mi-chemin entre centre-ville et plage, cette maison entièrement rénovée et agrandie en 2023 est la perle que vous attendiez ! Composée de deux belles chambres dont une avec
EXCLUSIVITE - A VENDRE - SAINT JEAN DE MONTS - A 800 m à pied du centre-ville et à 1 500 m de la Plage, découvrez ce terrain à bâtir hors lotissement d'une superficie de 299 m², idéalement situé. Au calme d'une impasse, il bénéficie d'un en
EXCLUSIVITE - A VENDRE - SAINT JEAN DE MONTS - A 800 m à pied du centre-ville et à 1500 m de la plage, découvrez ce terrain à bâtir, dans un petit lotissement, d'une superficie de 319 m², idéalement situé. Au calme d'une impasse, il bénéfic
EXCLUSIVITÉ - SAINT JEAN DE MONTS - A VENDRE - Dans une résidence avec piscine chauffée, pavillon comprenant un salon-séjour avec cuisine aménagée, une chambre avec placard, une mezzanine, une salle d'eau et un WC. Terrasse avec jardinet clos
EXCLUSIVITÉ - A VENDRE - SAINT JEAN DE MONTS - Situé entre le quartier du Petit Marché et du Devallon, nous vous proposons cet appartement de Type 2 au 2ème et dernier étage de la résidence (sans ascenseur). Il se compose d'une entrée, une cui
A VENDRE - EXCLUSIVITÉ - SAINT JEAN DE MONTS - Située dans le marais breton entre NOTRE DAME DE MONTS, SAINT JEAN DE MONTS et LE PERRIER, cette maison d'environ 130m² forte en potentiel est celle que vous attendiez ! Elle se compose d'une jolie et
A VENDRE - SAINT JEAN DE MONTS - Quartier d'Orouët, dans un lotissement de 9 parcelles, terrain sablonneux de 620 m² viabilisé et libre de constructeur. Réf.9181-L5 Pour toute information complémentaire ou visite, contactez-nous au 02.28.12.02.
A VENDRE - SAINT-JEAN-DE-MONTS - Programme neuf 'Le Bois Valentin' Venez découvrir ce pavillon neuf de 84 m², en lisière de la forêt du Pays de Monts et à seulement 2,3 km des plages de sable fin (Plage des Demoiselles). La maison de type 4 se
EXCLUSIVITÉ - A VENDRE - SAINT JEAN DE MONTS - A seulement 800 mètres de la place de l'église et 2 km de la plage, terrain hors lotissement d'une surface d'environ 650 m², non viabilisé. Zonage Ub2 (emprise au sol maximale fixée à 70%). Sous
A VENDRE - SAINT JEAN DE MONTS - Quartier du Golf et de la Thalasso! Bien Rare ! Découvrez cet appartement d'exception, un T6 en duplex d'environ 134 m², situé dans une résidence prisée avec piscine et gardien. Niché dans un quartier calme, il
A VENDRE - SAINT JEAN DE MONTS - A seulement 100 mètres du palais des congrès ODYSSEA et de la plage des oiseaux, cet appartement de type 2 est le logement idéal pour vos vacances ! Rénové avec goût et isolé des murs aux plafonds, il se compos
EXCLUSIVITE - A VENDRE - SAINT JEAN DE MONTS - A 800 m à pied du centre-ville et à 1500 m de la plage, découvrez ce terrain à bâtir, dans un petit lotissement, d'une superficie de 397m², idéalement situé. Au calme d'une impasse, il bénéfici
EXCLUSIVITE - A VENDRE - SAINT JEAN DE MONTS - A 800 m à pied du centre-ville et à 1 500 m de la plage, découvrez ce terrain à bâtir, dans un petit lotissement, d'une superficie de 290 m², idéalement situé. Au calme d'une impasse, il bénéfi