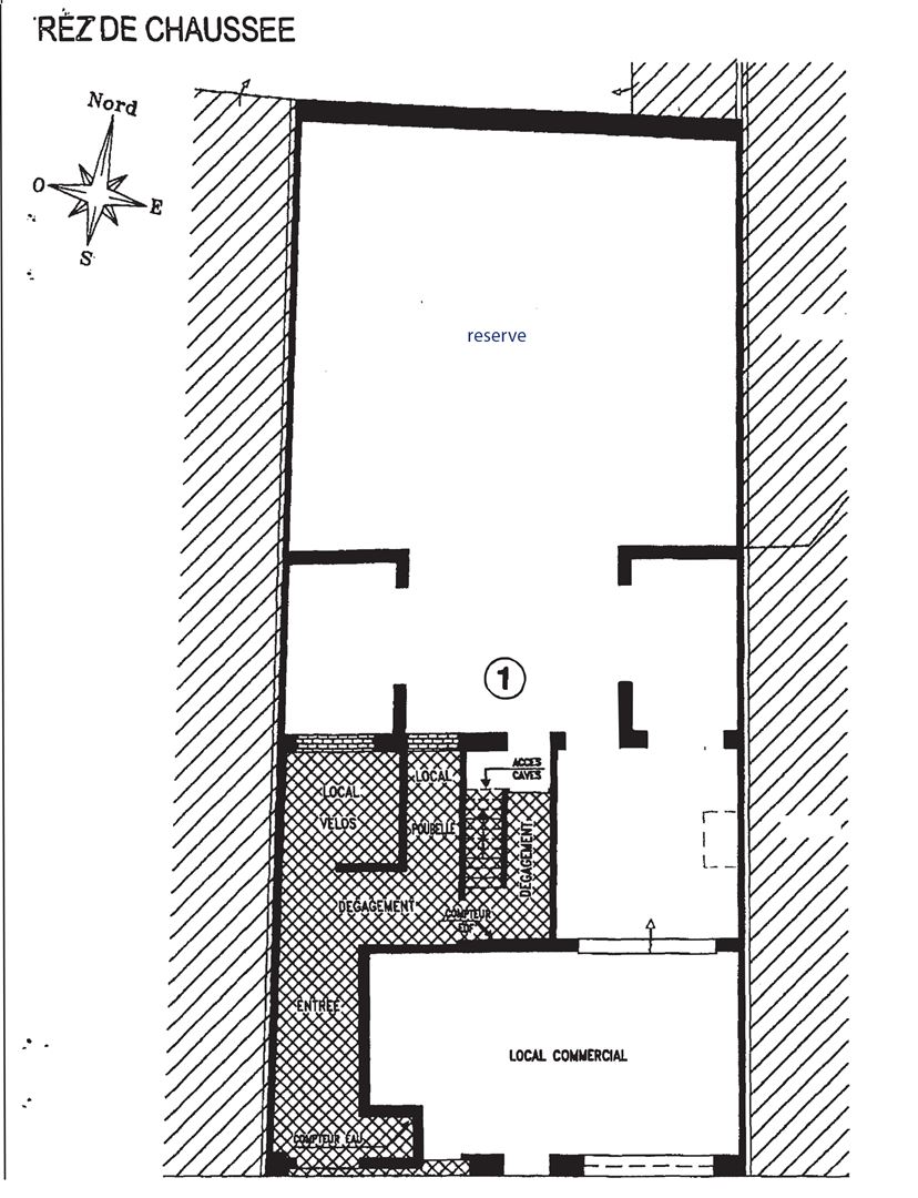
DUNKERQUE - 377 400 €
Spécial investisseurs, Murs commerciaux, rue Wilson, dans l'hyper-centre de Dunkerque.Caractéristiques : Local spacieux, lumineux et moderne, emplacement premium avec forte visibilité et passage.· 91m2 loi carrez· Réserve de 23m2· Sous-sol de