En vente Maison 6 pièces 127 m2

Ville SAULX LES CHARTREUX
Code postal 91160
Type de bien Maison
Surface 127 m2
Nombre de pièces 6 pièces
Prix 443 500,00 €
Informations sur l'annonceur
Annonce de professionnel
Agence ERA IMMOBILIER A LA CLEF DES CHAMPS
Voir toutes les annonces
Adresse 36 RUE JULIETTE ADAM
91190 GIF SUR YVETTE
Téléphone Fixe 0160111062
Portable 0627448748

Description

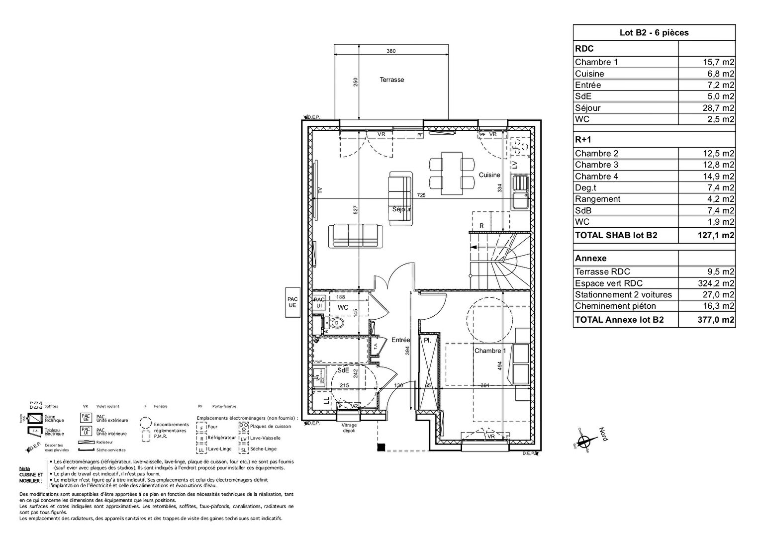
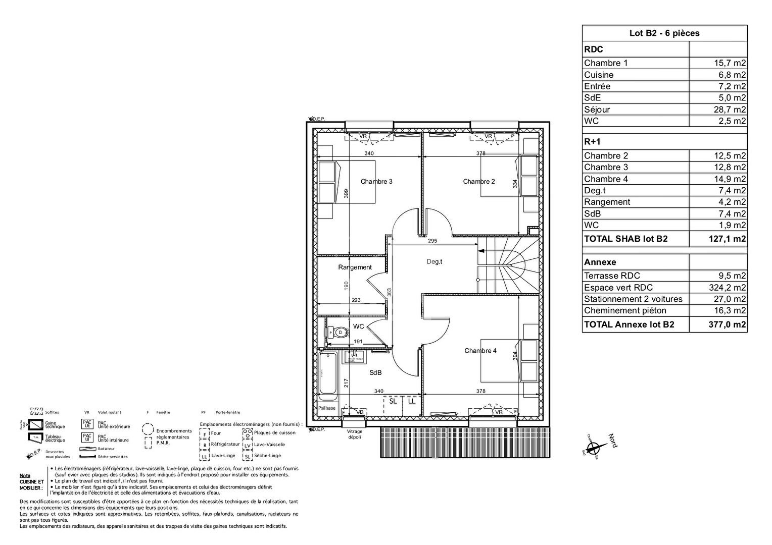
L'agence A la Clef des Champs vous propose sur la charmante commune de Saulx les Chartreux, petit village situé à 25minutes de Paris, en centre ville, une maison en Vente en Etat Futur d'Achevement ( VEFA ) livrée en fin d'année 2025. Composée de 6 pièces vous serez séduits par les 127m² habitables comprenant au rez de chaussée : entrée, cuisine US donnant sur un séjour double de 28m² environ ouvrant sur le jardin et une terrasse, une chambre de 15m² environ, salle d'eau et wc. A l'étage : trois belles chambres de 12,5 m², 12,8m² et 14,9m² ainsi qu'une salle de bains et un wc indépendant. A l'extérieur deux emplacements pour voiture. Les écoles primaires ainsi que la rue commerçante de Saulx sont à moins de 10 minutes à pieds. L'ensemble du dossier est disponible en agence. Le prix affiché comprend les honoraires d'agence à la charge de l'acquéreur de 5%.Le prix hors honoraires est de 422000 euros. L'agence ERA - A La Clef des Champs a fait le choix de rédiger ses mandats de vente avec les honoraires à la charge de l'acquéreur pour plus de transparence envers ses clients mais surtout afin de leur éviter un surplus de droits de mutations (appelés communément frais de notaires). En effet, lorsqu'ils sont à la charge de l'acquéreur, les honoraires ne sont pas soumis aux taxes. (5.09 % honoraires TTC à la charge de l'acquéreur.)

Les photos du bien

Les diagnostics


DPE
Energie non communiquée
GES
GES non communiqué