Annonces en ligne
ERA - A La Clef des Champs vous propose à Saint-Rémy-lès-Chevreuse, dans le quartier calme et recherché du Rhodon, cette maison familiale d'environ 150 m² habitables (230 m² utiles environ), à rafraîchir, édifiée sur un terrain de 913 m².
L'agence ERA IMMOBILIER A la Clef des Champs vous propose dans la vallée, sur la commune de SAINT REMY LES CHEVREUSE, au calme, et à 12 minutes à pied du centre et de la gare RER B cette belle maison familiale sur sous-sol total construite sur un
ERA IMMOBILIER - A La Clef des Champs vous propose à Saint-Rémy-lès-Chevreuse, dans un quartier calme et recherché, cette maison familiale d'environ 160 m² habitables (220 m² utiles), en excellent état, édifiée sur une parcelle de 293 m².
Située dans un lotissement calme et paisible de Saint-Rémy-lès-Chevreuse, cette maison rénovée de 115 m² offre un cadre de vie recherché, à la fois pratique et tourné vers la nature, à deux pas des commerces et des transports. La maison se
L'agence A la Clef des Champs vous propose sur la charmante commune de Saulx les Chartreux, petit village situé à 25minutes de Paris, en centre ville, un terrain avec maison. Composée de 6 pièces vous serez séduits par les 127m² habitables comp
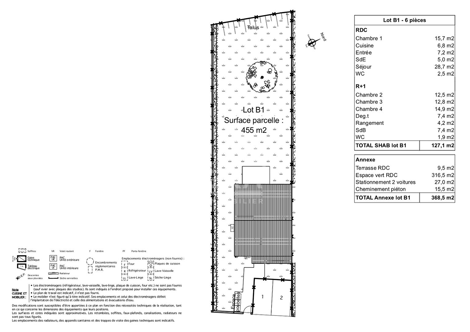
L'agence A la Clef des Champs vous propose sur la charmante commune de Saulx les Chartreux, petit village situé à 25minutes de Paris, en centre ville, une maison sur une parcelle de 455m² environ. . Composée de 6 pièces vous serez séduits par
L'agence ERA IMMOBILIER A La Clef des Champs vous propose en centre ville de GIF SUR YVETTE, cette maison individuelle sur sous-sol total de 83m² environ située à quelques minutes des écoles, collège, transports bus et gare. Elle offre une entr
Votre agence ERA A LA CLEF DES CHAMPS vous propose à la location dans la vallée de Gif sur Yvette, une maison d'habitation de 2014 de 5 pièces offrant un confortable séjour avec poêle et son accès direct au jardinet, une cuisine équipée, quat
A La Clef Des Champs vous propose à Gif-sur-Yvette, proche du centre-ville, un très beau terrain à bâtir d'environ 1000 m², libre constructeur, proche de toutes les commodités et des commerces de GIF vallée. Ecoles, collège et station RER à
L'agence ERA / A la clef des champs vous propose à Gif-sur-Yvette sur le quartier de Chevry, cette agréable maison d'habitation en bon état d'environ 92 m² habitables pour une surface utile d'environ 115m². La maison, au calme, est à 3 minute
L'agence ERA A la Clef des Champs vous propose cette spacieuse maison individuelle de 176 m² habitables, édifiée sur un terrain de près de 700 m², idéalement située à Saint-Rémy-lès-Chevreuse, à quelques minutes à pied de la gare RER et d
ERA - A La Clef des Champs vous propose en exclusivité à Saint-Rémy-lès-Chevreuse, à deux pas de la gare RER B de Courcelle-sur-Yvette et des commodités, cette charmante maison en meulière pleine de caractère d'environ 203 m² habitables, off
ERA ? A La Clef des Champs vous propose à Saint-Rémy-lès-Chevreuse, au calme d'une rue résidentielle, cette maison familiale d'environ 170 m² habitables (210 m² utiles), en bon état général, sur un terrain clos et arboré de 349 m² avec ter
L'agence A la Clef des Champs vous propose sur la charmante commune de Saulx les Chartreux, petit village situé à 25minutes de Paris, en centre ville, une maison sur une parcelle de 340m² environ. . Composée de 6 pièces vous serez séduits par
L'agence A la Clef des Champs vous propose sur la charmante commune de Saulx les Chartreux, petit village situé à 25minutes de Paris, en centre ville, une maison en Vente en Etat Futur d'Achevement ( VEFA ) livrée en fin d'année 2025. Composée
L'agence A la Clef des Champs vous propose sur la charmante commune de Saulx les Chartreux, petit village situé à 25minutes de Paris, en centre ville, une maison en Vente en Etat Futur d'Achèvement ( VEFA ) livrée en fin d'année 2025 sur une par
L'agence ERA A LA CLEF DES CHAMPS vous propose à la vente en exclusivité, sur la commune de GIF SUR YVETTE, dans une résidence familiale, arborée et sécurisée avec gardien, ce charmant appartement sans travaux de quatre pièces de 81 m² envir
Votre agence ERA Immobilier - A La Clef des Champs vous propose à Gif-sur-Yvette, dans le quartier pavillonnaire et familial de Chevry, à moins de 10 minutes à pied de la place de Chevry et de ses commodités, ainsi que des écoles et du collège
L'agence ERA IMMOBILIER A La Clef Des Champs vous propose dans la vallée, à GIF SUR YVETTE , situé au coeur d'un environnement calme, agréable et très recherché pour sa situation, un beau terrain à bâtir d'environ 1407 m² permettant une bel
L'agence ERA IMMOBILIER A la Clef des Champs vous propose dans la vallée, au sein d'un environnement calme, verdoyant et bien entretenu, cet appartement spacieux de 93 m² situé au dernier étage d'un immeuble en pierre de taille avec terrasse de 4